Tom Mandersstraat 17 7558 MS Hengelo

7558 MS Hengelo (Hengelo)

€ 1.190 per maand (excl.)

Beschikbaar vanaf 31 maart 2026

Nieuw
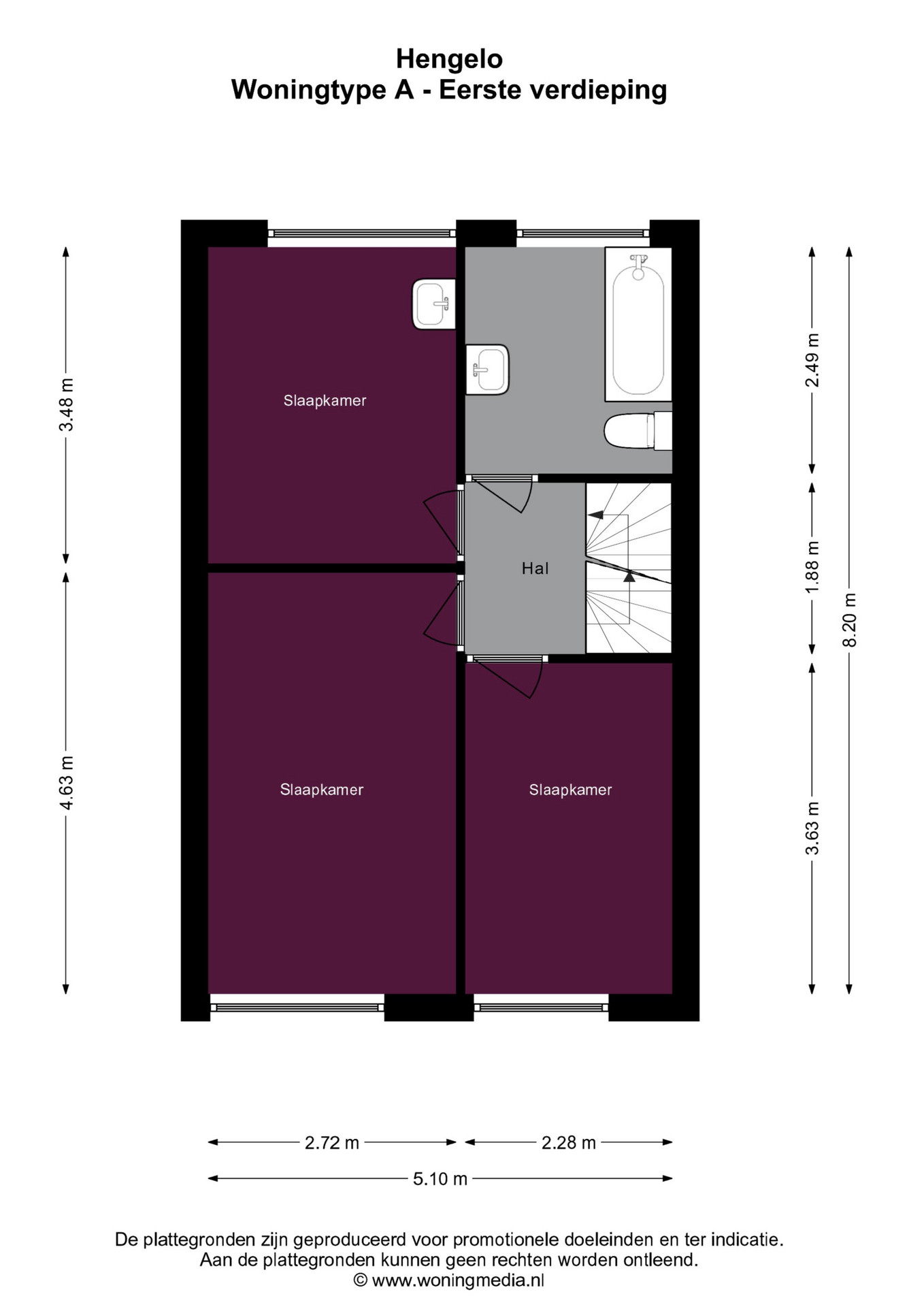
118 m2
5 kamers
4 slaapkamers
Share this home

Apartment overview

Gezinswoning aan Tom Mandersstraat 17 7558 MS HENGELO in Hengelo. Dit gezinswoning biedt 5 kamers met een gebruiksoppervlakte van circa 118 m². 🏠

Het gebouw is gerealiseerd rond 1982. De indeling is praktisch en sluit goed aan bij het dagelijkse wooncomfort. Dankzij de gunstige ligging zijn voorzieningen zoals winkels, horeca en groen binnen korte afstand bereikbaar.

Location

De woning bevindt zich in Hengelo, op een goed bereikbare locatie met zowel stedelijke voorzieningen als rustige woonstraten in de directe omgeving. Hier woon je centraal, met voldoende dagelijkse voorzieningen binnen loop- of fietsafstand.

De bereikbaarheid met het openbaar vervoer is uitstekend: Station Hengelo en Busstation Hengelo liggen op korte afstand, waardoor reizen naar andere steden eenvoudig is. Daarnaast zijn er diverse lokale bushaltes en goede aansluitingen op het regionale wegennet. 🚆🚌

Energy performance

De woning beschikt over energielabel B, wat bijdraagt aan een comfortabel binnenklimaat en een lager energieverbruik. Een goed energielabel betekent doorgaans lagere maandelijkse lasten en een duurzamere manier van wonen.

Afhankelijk van jouw woonwensen kun je met relatief beperkte ingrepen vaak al extra comfort en energiebesparing realiseren, bijvoorbeeld door het verbeteren van isolatie of het toepassen van slimme installaties.

Foto's kunnen van een vergelijkbare woning zijn

Kenmerken

Oppervlakte
118 m2
Kamers
5
Slaapkamers
4
Energielabel
B
Huurvoorwaarden

Gerelateerde woningen

Persoonlijk

Altijd persoonlijke aandacht voor jouw specifieke wensen

Gemakkelijk

Huren was nog nooit zo eenvoudig door ons overzichtelijke verhuurproces

Snel

Vind jouw droomwoning vandaag