Insulindeweg 105-H, Amsterdam

1094 PG Amsterdam (Amsterdam)

€ 2.300 per maand (excl.)

Beschikbaar vanaf 30 november 2025

Nieuw
Appartement
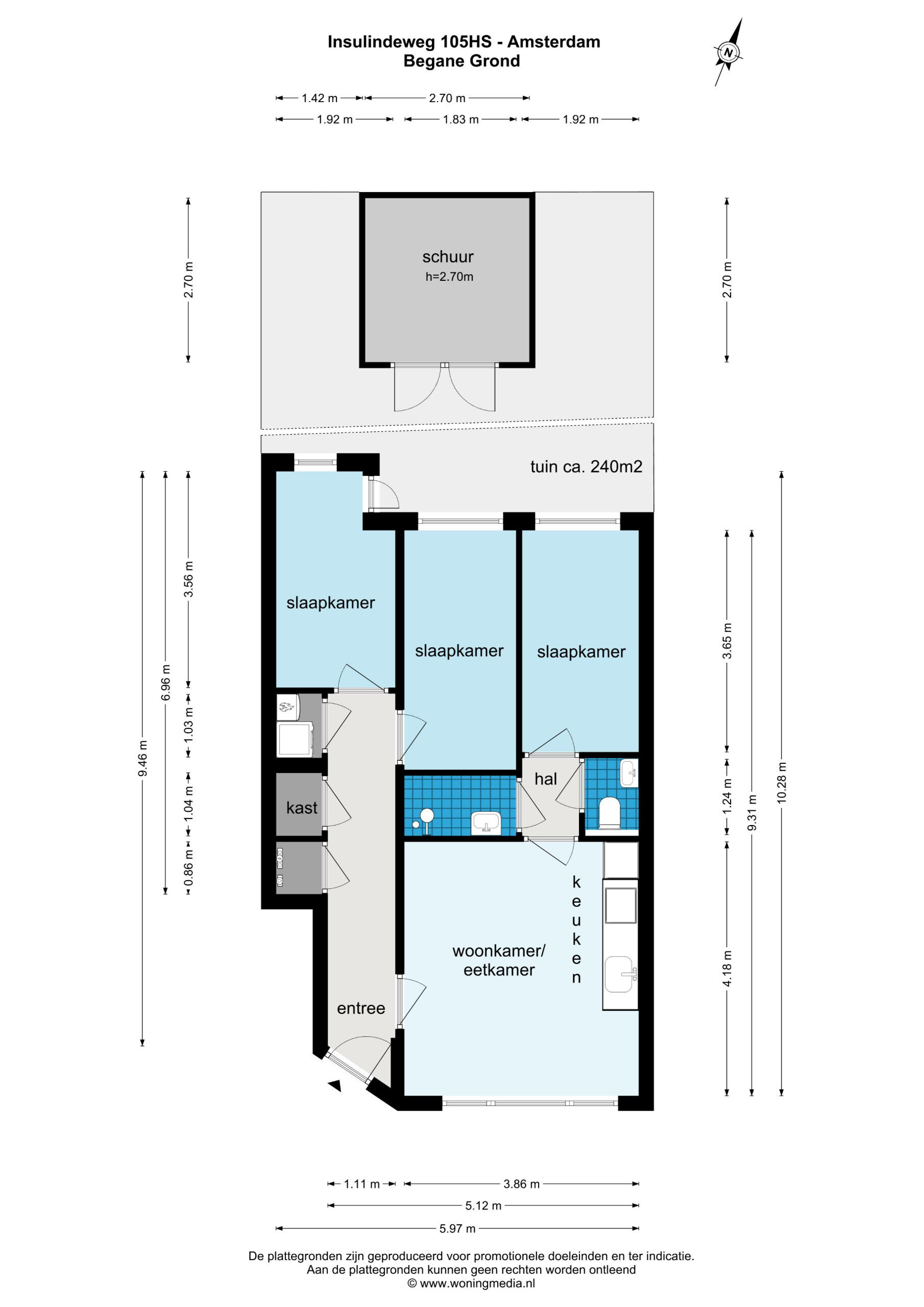
54 m2
4 kamers
3 slaapkamers
Share this home

Apartment overview

Appartement aan Insulindeweg 105-H in Amsterdam. Dit appartement biedt 3 kamers met een gebruiksoppervlakte van circa 55 m². 🏠

Het gebouw is gerealiseerd rond 1924. De indeling is praktisch en sluit goed aan bij het dagelijkse wooncomfort. Dankzij de gunstige ligging zijn voorzieningen zoals winkels, horeca en groen binnen korte afstand bereikbaar.

Location

De woning bevindt zich in Amsterdam, op een goed bereikbare locatie met zowel stedelijke voorzieningen als rustige woonstraten in de directe omgeving. Hier woon je centraal, met voldoende dagelijkse voorzieningen binnen loop- of fietsafstand.

De bereikbaarheid met het openbaar vervoer is uitstekend: Station Amsterdam Centraal en Busstation Amsterdam Centraal liggen op korte afstand, waardoor reizen naar andere steden eenvoudig is. Daarnaast zijn er diverse lokale bushaltes en goede aansluitingen op het regionale wegennet. 🚆🚌

Energy performance

De woning beschikt over energielabel C, wat bijdraagt aan een comfortabel binnenklimaat en een lager energieverbruik. Een goed energielabel betekent doorgaans lagere maandelijkse lasten en een duurzamere manier van wonen.

Afhankelijk van jouw woonwensen kun je met relatief beperkte ingrepen vaak al extra comfort en energiebesparing realiseren, bijvoorbeeld door het verbeteren van isolatie of het toepassen van slimme installaties.

Foto's kunnen van een vergelijkbare woning zijn

Kenmerken

Type
Appartement
Oppervlakte
54 m2
Kamers
4
Slaapkamers
3
Servicekosten
€ 25 per maand
Energielabel
C
Huurvoorwaarden

Gerelateerde woningen

Persoonlijk

Altijd persoonlijke aandacht voor jouw specifieke wensen

Gemakkelijk

Huren was nog nooit zo eenvoudig door ons overzichtelijke verhuurproces

Snel

Vind jouw droomwoning vandaag