Schans 250, Uithoorn

1423 CD Uithoorn (Uithoorn)

€ 1.450 per month (excl.)

Available from 31 December 2025

New
Apartment
81 sqm
3 rooms
2 bedrooms
Share this home

Apartment overview

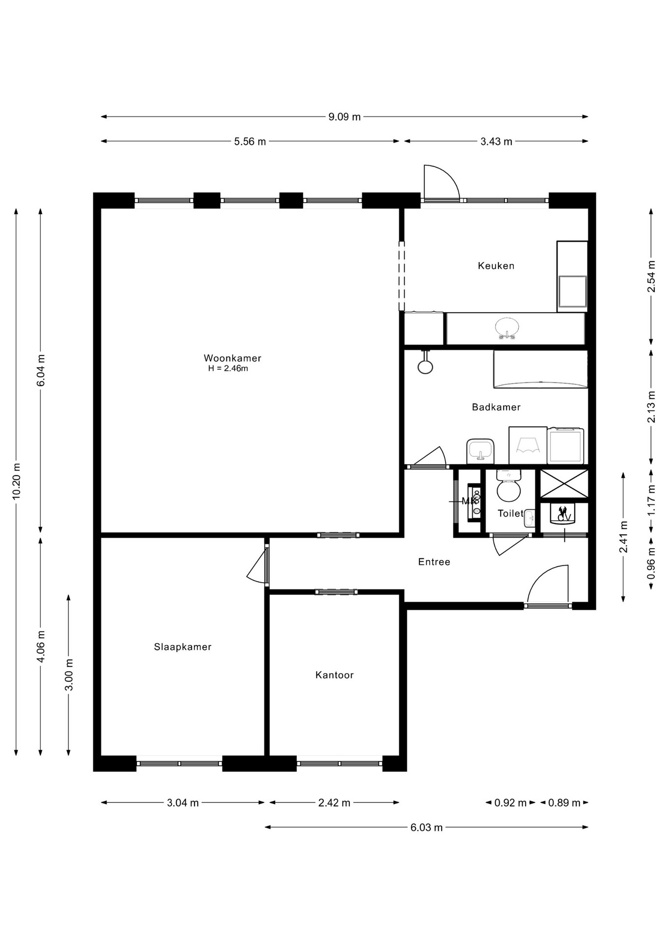
Apartment at Schans 250 in Uithoorn. This apartment offers 3 rooms with a usable area of ​​approximately 82 m². 🏠

The building was completed around 1986. The layout is practical and fits in well with everyday living comfort. Thanks to its convenient location, facilities such as shops, restaurants and greenery are accessible within a short distance.

Location

The house is located in Uithoorn, in an easily accessible location with both urban facilities and quiet residential streets in the immediate vicinity. Here you live centrally, with sufficient daily facilities within walking or cycling distance.

The accessibility by public transport is excellent: Uithoorn Station and Uithoorn Bus Station are a short distance away, making traveling to other cities easy. There are also several local bus stops and good connections to the regional road network. 🚆🚌

Energy performance

The house has energy label B, which contributes to a comfortable indoor climate and lower energy consumption. A good energy label usually means lower monthly costs and a more sustainable way of living.

Depending on your housing needs, you can often achieve additional comfort and energy savings with relatively limited interventions, for example by improving insulation or applying smart installations.

Photos may be of a comparable home

Facts

Type
Apartment
Area
81 sqm
Rooms
3
Bedrooms
2
Elevator
Elevator present
Service costs
€ 55 per month
Energy label
B
Letting conditions

Related properties

Tailored

Our service, tailored to your needs

Easy

Our easy-to-use platform makes renting simpler than ever

Fast

Find your dream home today